Willkommen in Ihrer Ferienwohnung in Sonnenalpe Nassfeld

Ankommen. Wohlfühlen. Wiederkommen.

Das Apartment

Dieses behagliche Ferienapartment liegt unmittelbar an der Skipiste und ermöglicht direkten Zugang zum Skivergnügen – ohne Umwege, direkt vom Haus auf die Piste und zurück. Die stilvolle Ausstattung kombiniert Komfort mit Funktionalität und lässt keine Wünsche offen – ideal für entspannte Ferientage in den Bergen.

Für Unterhaltung ist bestens gesorgt: Modernes Equipment wie hochwertige Lautsprecher von Bose, ein Apple HomePod sowie eine Sony PlayStation 5 inklusive zweier Controller stehen zur freien Verfügung – sowohl für Kinder als auch für Erwachsene ein echtes Highlight. Vom eigenen Balkon genießen Sie einen atemberaubenden Blick auf die umliegenden Gipfel und das lebendige Treiben auf der Skipiste.

Ihre Vierbeiner sind natürlich herzlich Willkommen!

Infos zur Ferienwohnung

2 Schlafzimmer
6 Personen + Babys
2 Bäder, 2 Toiletten
80 m² groß
Direkt an der Piste
Gratis W-Lan
Max. 1 Hund
Balkon mit Pisten- und Bergblick
Parkgarage mit Lift zur Wohnung im Untergeschoss des Gebäudes
E-Ladestation für KFZ in Parkgarage (bspw. Kreditkartenzahlung)
24/7 check-in via versperrbarem Schlüsselsafe

Skibox, beheizt und versperrbar, im Skiraum beim Pistenausgang

2 Radboxen mit E-Steckdose für bis zu 6 Fahrräder

Playstation 5 mit DVD drive, 2 controls

Nahe Restaurants und Lebensmittelgeschäften

Sonnig von Sonnenauf- bis Sonnenuntergang

In unmittelbarer Umgebung:
  • Entfernung zur Piste: 0 Meter
  • 24/7 Lebensmittel Farm2go – Nassfeld: 39 Meter
  • Lebensmittel ADEG: 300 Meter
  • Lebensmittel SPAR: 10,1 km
  • Restaurant Pizzeria Kabrio: 170 Meter
  • Restaurant The Remo Bar & Grill: 230 Meter
  • Restaurant Cafe Bar Kapas: 240 Meter
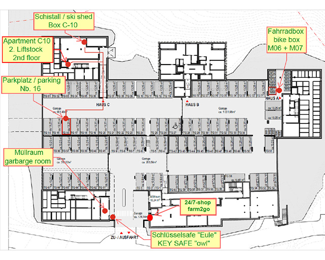
Plan der Wohnung:
Orientatierungskarte vom Ferienhaus:

Die Lage – Das Nassfeld

Das Skigebiet bietet beeindruckende 110 Kilometer bestens präparierter Abfahrten in unterschiedlichen Schwierigkeitsgraden, erschlossen durch 29 moderne Lifte und Bahnen. Die Aussicht zum Skigebiet ist spektakulär und macht jeden Skitag zu einem besonderen Erlebnis. Doch auch abseits der Piste wartet ein vielseitiges Freizeitangebot: Rodelbahnen, Schneeschuhwanderungen, Langlaufloipen, Skitouren sowie Eislaufplätze sorgen für Abwechslung im winterlichen Urlaub.

Auch in den warmen Monaten hat das Nassfeld einiges zu bieten. Ob zu Fuß beim Wandern, mit dem Rad auf abwechslungsreichen Trails, beim Klettern, Kajakfahren, Sommerrodeln oder auf dem Golfplatz – hier kommt jeder Aktivurlauber auf seine Kosten. Und zur Erfrischung laden kristallklare Seen wie der Weissensee, idyllische Berggewässer oder diverse Frei- und Hallenbäder ein.
Der nahegelegene Presseggersee mit angehnehmen Badetemperaturen und all seinen sportlichen Möglichkeiten ist ideal für Familien mit Kindern.

Ganz gleich, ob Winter oder Sommer – das Nassfeld ist zu jeder Jahreszeit ein attraktives Reiseziel, das unvergessliche Urlaubsmomente garantiert.

5 Gondelbahnen
9 Seilbahnen
9 Schlepplifte
110 km Schipisten

Benötigen Sie noch mehr Info?

Kontaktieren Sie uns gerne oder klicken Sie auf den Link ‚URLAUB BUCHEN‘ für Preisinformationen und aktuelle Verfügbarkeit.